Orthogen for Forte 3DWorx
OrthoGen




Co je OrthoGen?
OrthoGen od společnosti 3DS Net Inc. je sofistikovaná aplikace Object ARX, která automatizuje kótování ortografických výkresů a využívá vlastní algoritmy pro přesné umístění popisek a kót. Díky minimalizaci potřeby ručních postupů OrthoGen výrazně zlepšuje kvalitu ortografických výkresů a současně snižuje dobu potřebnou k jejich vytvoření o více než 50 %. Vygenerované anotace jsou navrženy tak, aby byly v souladu s modelem, a mohou být automaticky aktualizovány při jakýchkoli změnách. Se svými pokročilými funkcemi nabízí OrthoGen bezproblémové a efektivní řešení pro přesnou a zjednodušenou projektovou dokumentaci.
Proč používat OrthoGen?
- OrthoGen se používá již více než dvacet sedm let k automatizaci anotací a rozměrů na stovkách tisíc ortogonálních výkresů.
- OrthoGen snižuje dobu výroby a náklady o více než 50 %.
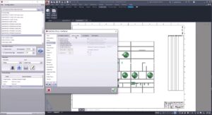
- Jednoduché a rychlé uživatelské rozhraní.
- Automaticky aktualizuje výkresy tak, aby odpovídaly nejnovějšímu stavu modelu.
- Ruční úpravy popisků lze zachovat.
- Dodává se s více než 50 styly zobrazení výkresů.
- Umožňuje přizpůsobit styly zobrazení výkresů podle požadavků zákazníka.
- Zlepšuje tok informací.
- Generuje dokumentaci „As-Designed“ před výstavbou, což snižuje množství RFI a neshody s dodavateli.
- OrthoGen umožňuje vytvářet, aktualizovat a publikovat výkresy a pohledy již na začátku projektu a poskytovat průběžnou detailní projektovou dokumentaci pro klienty, dodavatele a pracovníky během fáze návrhu (stav modelu, plánování/rozvržení, napětí, proces, izolace, nátěry atd.).
Kdo používá OrthoGen?
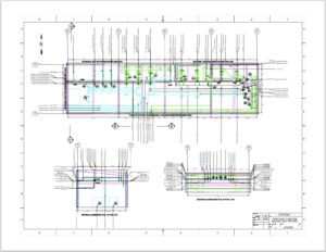
OrthoGen je softwarový nástroj běžně používaný profesionály v oblastech inženýrství, architektury a stavebnictví. Je speciálně navržen pro generování 2D ortogonálních výkresů z 3D modelů, což jej činí užitečným pro inženýry, kreslíře a architekty, kteří pracují s 3D modely a potřebují vytvářet 2D technické výkresy pro stavbu, výrobu nebo dokumentaci.
OrthoGen používají odborníci v různých odvětvích, včetně:
- Kreslení: Kreslíři, kteří zodpovídají za tvorbu detailních technických výkresů, používají OrthoGen k generování 2D výkresů z 3D modelů. To může zahrnovat výkresy pro výrobu, instalaci a montáž komponent v odvětvích, jako je výroba, zpracování a montáž.
- Inženýrství: Inženýři využívají OrthoGen k tvorbě 2D ortogonálních výkresů ze svých 3D modelů pro různé inženýrské disciplíny, jako je konstrukční, strojní a elektroinženýrství. Tyto výkresy se používají pro návrh a detailní zpracování konstrukčních prvků, potrubních systémů a dalších inženýrských systémů.
- Architektura: Architekti používají OrthoGen k vytváření 2D půdorysů, pohledů, řezů a dalších stavebních výkresů ze svých 3D architektonických modelů. Tyto výkresy slouží pro komunikaci s klienty, dodavateli a dalšími účastníky projektu a také pro získání stavebního povolení.
- Stavebnictví: Stavební profesionálové, jako jsou dodavatelé a subdodavatelé, využívají OrthoGen k tvorbě 2D výkresů z 3D modelů, aby usnadnili stavební proces. Tyto výkresy lze použít pro plánování, koordinaci a komunikaci mezi různými profesemi zapojenými do stavebního projektu.
Celkově je OrthoGen široce používán profesionály, kteří potřebují vytvářet 2D technické výkresy z 3D modelů v oblastech architektury, inženýrství, stavebnictví a kreslení, aby podpořili své procesy návrhu, výroby a stavby.
Oblasti, kterým slouží:
- Ropa a plyn
- Petrochemie
- Chemický průmysl
- Farmacie
- Potravinářství a nápoje
- Vodohospodářství
- Energetika – jaderná / nejaderná
- Polovodiče
- Těžba
- Námořní průmysl
- Veřejné služby
- Infrastruktura / AEC / BIM
Výhody OrthoGen:
- Pracuje přímo se soubory AutoCAD nebo BricsCAD ve formátu DWG.
- Odstraňuje opakující se ruční značení a dimenzování po jednom.
- Snižuje chyby při ručním kreslení a čas potřebný na kontrolu.
- Šetří čas při anotacích, více času lze věnovat samotnému návrhu.
- Bezproblémově implementuje CAD standardy zákazníka a zajišťuje konzistentní tvorbu ortografických výkresů.
- Automatizuje opakující se úkoly, čímž zvyšuje efektivitu a kvalitu.
- Nákladově efektivně vytváří více detailů a průřezů, které plně dokumentují „záměr návrhu“.
- Rychlé a přesné: OrthoGen aktualizuje pohledy pro jakoukoli disciplínu během několika sekund.
- Automaticky aplikuje detailní anotace a rozměry na celé viewporty.
- Podporuje více pohledů na jednom listu a umožňuje aplikovat různé styly na jednotlivé pohledy.
- Umisťuje značky do „volného prostoru“, aby se nepřekrývaly s vizualizací výkresu.
- Automaticky anotuje limity a orientaci pohledů.
- Podporuje uživatelské souřadnicové systémy (UCS).
- Umisťuje polohová data vyjádřená jako souřadnice a/nebo rozměry.
- Automatické rozměry (řetězce, stohy, ordináty) pro zařízení/trubky ke konstrukci/mřížím.
- Automaticky umisťuje BOP, TOP, CL, INV nebo TOS.
- Skloněné potrubí lze vyjádřit jako poměr, úhel nebo procentní sklon; možnost umístit BOP tam, kde skloněné čáry protínají match lines.
- Automaticky umisťuje popisky mříží a rozměry k mřížím v půdorysech a pohledech.
- Integruje se se strukturálními modely CADWorx Structure Professional včetně mříží.
- Snadno definovatelné pravidla „úrovně detailu“ pro značení potrubí a kontrolu hustoty popisků.
- Ručně přesunuté značky se při aktualizacích zachovávají.
- Automatizuje umístění/orientaci přípojek zařízení, GA zařízení, GA potrubí, potrubních lávek, podzemního potrubí, umístění přístrojů, kabelových žlabů a GA HVAC.